Aquarium Stand

Image

The UCLA Fernald Child Care Center Pink room (pre-school) had a makeshift aquarium stand from an old cabinet with a board on top that just wasn't cutting it. The cabinet was too low, the board was too long and narrow, and the "storage" space was a mess and not toddler, parent, or teacher friendly.

The teachers wanted a new cabinet that was taller, had better storage, and would prevent the kids from pulling on the filter, heater, and air pump lines. Also, looking nicer would be a huge plus.

The biggest challenge was budget. They wanted a lot for as little cost as possible. So I took on the challenge to make the nicest aquarium stand I could that met all the requirements out of a single sheet of plywood. Lucky for me, the aquarium wasn't too large.

After measuring the tank's width, length, and height with the hood on, I had all the info I needed–that was the easy part of the job.

I jumped into SketchUp and started modeling out the tank and stand. Then I applied all my skills at playing Tetris to get all the pieces to fit in one sheet of plywood as well as line up for some nice continuous grain where I could manage it–because, you know, the challenge wasn't hard enough already.

I didn't take any snapshots of the build until it was almost complete.

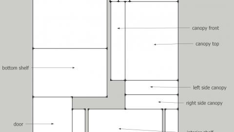
The stand has a complete shroud around the top and back of the aquarium, as well as a lip around the front and sides so the tank can't shift out of the stand. The platform for the aquarium has multiple supports underneath to bear the weight of all the water in the tank, as well as a 2" hole in the center back for cords and the air hose to pass down into the cabinet below.

Once finished, I removed the old "stand" and cut a hole in the back of the cabinet to line up with the power outlet in the wall. I then placed the Aquarium in its new home (after redecorating it too). I ran all the cords down into the cabinet to a mounted power strip and tied them up to keep them neat. Then I loaded up all the supplies and a new bucket for water changes, and it was done.

Project Type